Exley Design & Planning
What can we do for you?
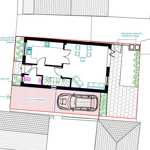
New build & Custom Build Houses
Designing your own home can be an exciting and fulfilling project. It can also be quite daunting and stressful. Exley Design and Planning can help with all stages of a new or custom build home beyond simply preparing designs.
Planning
Exley Design and Planning offer a planning consultancy and advice service. We have worked with the majority of planning authorities in and around Hampshire and are well acquainted with the planning policies and intricacies of each. We are therefore well placed to give you the advice and support that you need to give your new home the best possible chance of approval. Whether it be a formal opinion on the prospects of obtaining planning permission, or providing a robust statement to accompany an application, we are here to assist.
Design
In addition to handling the planning matters, Exley Design and Planning can design your home. We know that designing your own house is deeply personal and our ethos is that the customer is always right. We offer a design service tailored to your requirements and can work to fulfill your specific requirements or, if you have no fixed ideas, are happy to lead with preparation of designs that meet your needs whilst remaining achievable and affordable.
Services we offer:
- Review Client requirements and advise on planning implications
- Site measures
- Concept/ feasibility drawings
- Planning stage drawings
- Design & Access statements
- Applications for Full Planning Permission
- Construction stage drawings
- Building Regulation applications
With all projects that we undertake, we will work to your timescales. If your project is urgent or requires a quicker turnaround of drawings and design information, we have the flexibility to meet your needs.
At every step along the way, Exley Design and Planning will explain the process and manage the application on your behalf, dealing with Council officers and handling any queries that arise - so you don't have to worry. Our mission is to ensure you get the result that you want.
Helpful Info
The Planning Portal Interactive House
gives an excellent guide on what works you may be able to do without
needing planning permission.
Interactive House
EXTENSIONS, LOFT CONVERSIONS AND REFURBISHMENTS
These days, more and more people are choosing to extend or alter their current home rather than move to a new house. Exley Design and Planning are on-hand to ensure the process is as smooth and stress free as possible at all stages along the way.
We offer flexible timescales to suit your needs. Generally, we would issue a first set of draft drawings within one working week of a site visit - however, if your project is urgent, we can offer a quicker turnaround to suit your needs.
We are able to assist with the planning and the building regulations / detailed design stages of your project and a large part of our workload involves bringing to life planning-stage designs by other designers who are not able or prepared to undertake the detailed design aspects.

Past projects which we have undertaken include:
- Single storey extensions
- Two-storey extensions
- Loft Conversions
- Major internal alterations and refurbishments
- Designing outbuildings and workshops
Services we offer:
- Review Client requirements and advise on the need for planning permission
- Site measures
- Planning stage drawings
- Design & Access statements
- Applications for Full Planning and Lawful Development Certificates
- Construction stage drawings and specification
- Building Regulations applications
At every step along the way, Exley Design and Planning will explain the process and manage the application on your behalf, dealing with Council officers and handling any queries that arise - so you don't have to worry. Our mission is to ensure you get the result that you want.
Helpful Info
The Planning Portal Interactive House
gives an excellent guide on what works you may be able to do without
needing planning permission.
Interactive House
Land and Planning
As planning and design consultants, Exley Design and Planning work with developers to secure the best value for their assets through the planning process and beyond.
Our hands-on approach and strong working relationships with Local Authorities and key personnel in and around Hampshire means we are well-placed to advise on planning matters and to assist with applications. We are able to provide formal and informal advice notes as well as spatial appraisals and drawings to give a detailed understanding of what might be achievable, or to accompany applications for planning permission.

In many instances, our initial high-level appraisal of a site's potential will be provided at no cost to give you an indication of potential without risking expenditure. On some opportunities, we will even undertake planning applications at risk on a 'no permission, no fee' basis.
Services we offer:
- Spatial appraisals to identify site constraints, opportunities, capacity and likely development quantum
- Planning appraisals to identify key risks, opportunities and the likelihood of gaining planning approval
- Prepare and submit planning applications within a fixed-cost agreement, including preparing or commissioning all drawings necessary to support the application
- Outright purchase of land
- Purchase subject to planning via Option Agreement or similar
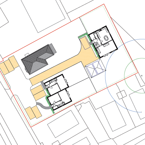
Residential Development
Exley Design and Planning work with residential/ property developers as planning consultants and designers. Additionally, we offer a design management/ coordination service that can help to streamline the planning and pre-construction processes, speeding up the start-on-site and realize best value for money.
Design Management and Coordination
As design consultants, Exley Design & Planning have first-hand experience of the design process and understand how difficult it can be to coordinate all the different consultants working on a project. Whether you are at the Planning or Detailed Design stage, we offer a complete design management service to take the stress and complication out of this process. We can manage and coordinate your planning application or construction stage design package on your behalf.

Our services include:
- Procurement and coordination of architectural, civil, structural, MEP, Landscape and specialist design packages
- Production and agreement of design programmes and tracking of implementation
- Design reviews for consistency, cross-discipline coordination and value engineering
- Preparation and submission of Discharge of Planning Condition applications
- Liaison with Planning, Building Control and Warranty providers to address queries and obtain design sign-off
Design and Planning
As planning and design consultants, we work with developers to secure best value for their assets through the planning process and beyond. Our hands-on approach and strong working relationships with Local Authorities and key personnel in and around Hampshire means we are well-placed to advise on planning matters and to assist with applications. We are able to provide formal and informal advice notes as well as spatial appraisals and drawings. In many instances, our initial high-level appraisal of a site's potential will be provided at no cost to give you an indication of potential without risking expenditure. On some opportunities, we will even undertake planning applications at risk on a 'no permission, no fee' basis.




